A Műanyag Ablak Beépítési Mélysége és Ablaktok Vastagsága
A műanyag ablak kiválasztásakor fontos szempont a beépítési mélység és az ablaktok vastagsága. Az ablaktok vastagsága meghatározza, hogy mennyire masszív és hőszigetelő a választott ablak. Általában az alap beépítési mélység 70 mm-től indul, de akár 90 mm-ig is terjedhet, különösen külső alumínium borítás esetén. Az ablaktok vastagságát gyakran emelik a műanyag ablak légkamráinak számával együtt, azonban érdemes körültekintően megválasztani a megfelelő kombinációt.
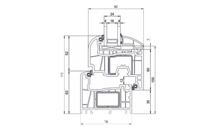
A tok és a szárnyvastagság viszonya

Bár az interneten található leírások általában azt javasolják, hogy a 70 mm-es beépítési mélységű ablakok 5 légkamrával rendelkező kivitelben a minimum elvárás, mi mégis azt javasoljuk, hogy manapság érdemes ennél nagyobb beépítési mélységű műanyag ablakot választani. A VEKA 76 AD belépő szintű rendszerünk, például a 76 mm-es tok és szárnyvastagsággal rendelkezik, amely biztosítja a megfelelő stabilitást és hőszigetelést.
Miért fontos a magasabb beépítési mélység
Fontos megjegyezni, hogy az ablaktok és az ablakszárny vastagsága nem minden esetben azonos, ahogy azt az előző példa is mutatja, de ez nem befolyásolja a beépítési mélységet. Ezért összefoglalva, a megfelelő ablak kiválasztásakor ne csak a légkamrákat, hanem az ablaktok vastagságát is figyelembe kell venni. A tokvastagság meghatározza az ablak stabilitását és hőszigetelését, így nagy jelentőséggel bír az energiatakarékosság és a kényelem szempontjából.

Általánosságban elmondható, hogy az ablakok szárnyszélessége minimum azonos vagy szélesebb is mint tok vastagság. Ennek oka, hogy a profilgyártók törekszenek az adott profillal elérhető maximális hőszigetelést elérni. Ehhez viszont szükséges az ablakszárny fogadni tudja a 3 rétegű üvegezést és ha lehetséges akkor a 48 mm-es üvegezést is. Az ablakok üvegezésének lehetőségeiről már írtunk egy bejegyzést amiben részletezzük az üveg szerepét.
A 70 mm-es rendszerek 36mm-es üvegezésig, míg a 80 mm és a feletti ablak rendszerek 48 mm-es üvegezések befogadására képesek.


Vélemény, hozzászólás?